Comforts Market

San Anselmo, CA
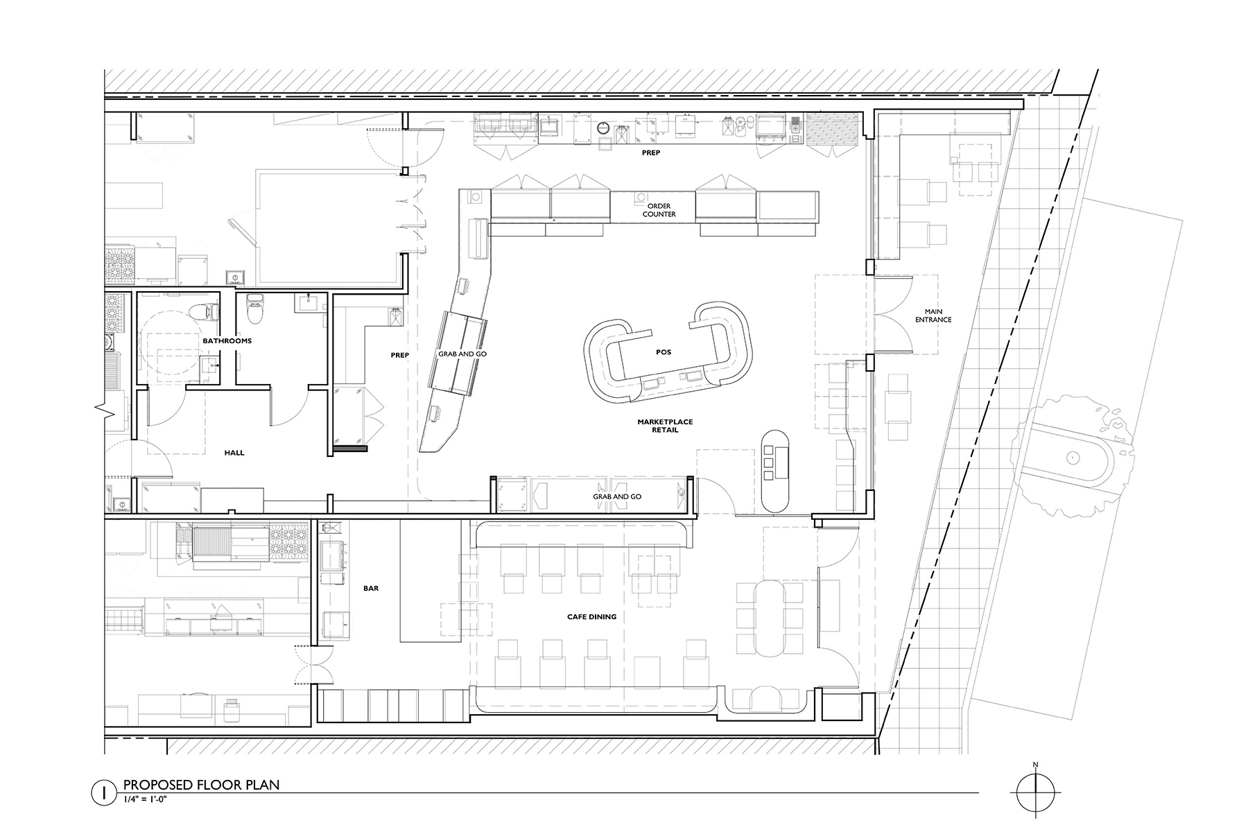
Comforts, a family-owned staple in San Anselmo since the 1980s, offers a full-service sit-down café alongside a market with a deli, ready-to-go meals, retail offerings, and catering services. We worked closely with the owners to revitalize the interior, enhancing the space with a much-needed facelift and reworking the flow of the market to improve customer experience.

The design features an open, airy, and bright atmosphere, complemented by custom graphics from Rubber Design and a unique tile mural by Fireclay. To ensure minimal disruption to the business, the renovation was carried out in two phases: The café was completed first while the market remained open, followed by the marketplace’s renovation once the café was finished.

Row Image
Row Image
Row Image
Row Image
Row Image
Row Image
Row Image
Row Image