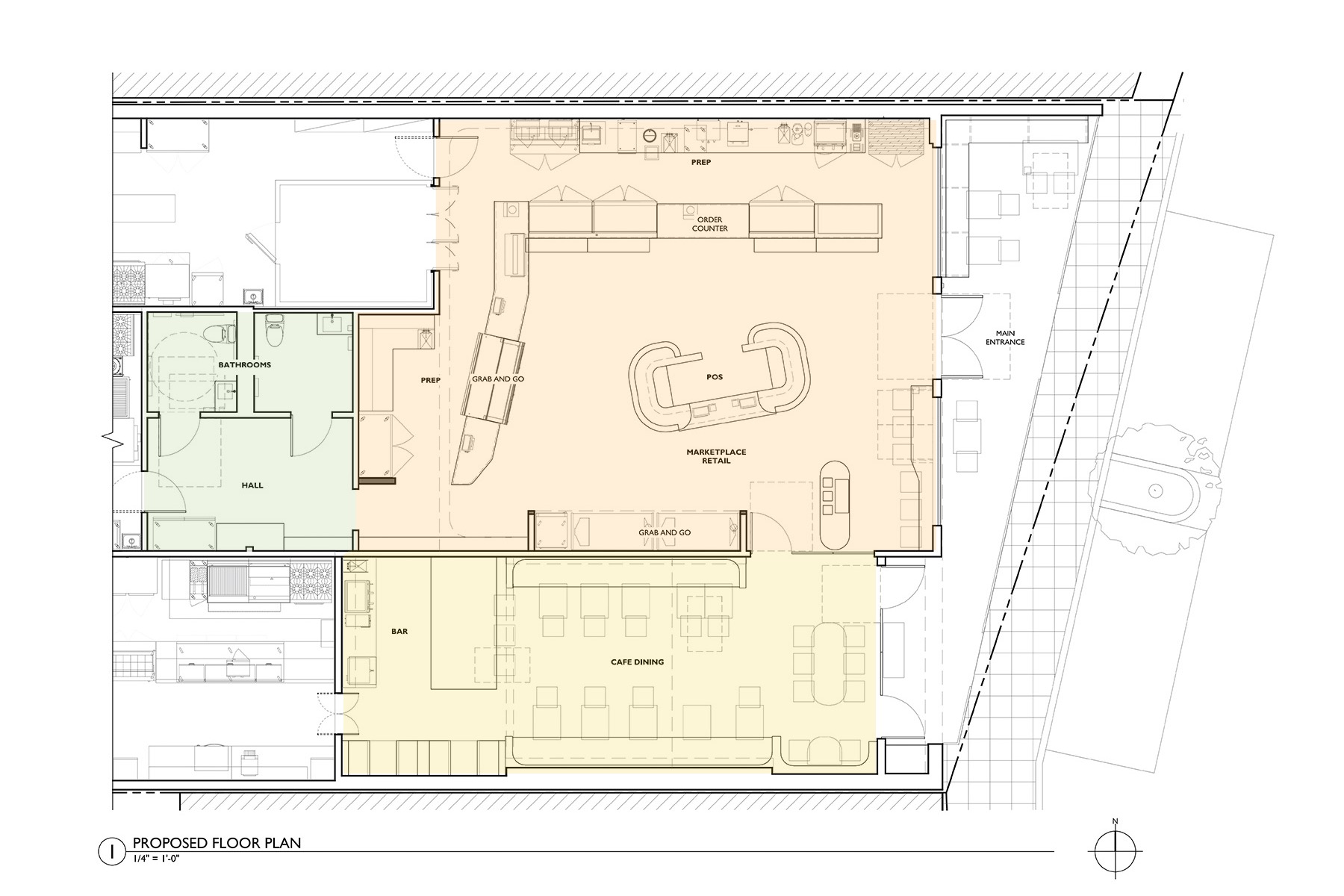
At 6,500 SF, the blank, newly-built, vanilla-shell space needed an architectural intervention to break up the space and to make it more human-scaled. We designed a variety of custom curved and clover-shaped wood banquettes, creating rooms within the larger room.
